深夜バー
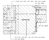
接待を伴わないバーなどについても、深夜営業を行う場合、深夜酒類提供飲食店営業の届出が必要となり、申請にあたっては営業開始届出書の他、営業の方法を記載した書類、営業所の平面図、住民票などの添付が求められます。
※ギャルズバー、レデイースバー、ガールズバーについても、深夜営業を行う場合は届出が必要です。
※届出にあたって、書類作成および提出は自分でするが、サポート(有償)だけはお願いしたいという方もお気軽にご連絡下さい。
※営業所の平面図(求積図含む)作成や照明音響配置図のみの依頼も承っています。ご相談ください。
※開業後に必要な従業員名簿・雇用契約書・服務規定・誓約書・面接票などの作成も承っています。
※当方、祇園で店舗経営の経験のある行政書士です。
深夜バー開業サポート内容・報酬についてはこちらまで。![]()
■深夜バー(深夜酒類提供飲食店)は、地域(用途地域)によっては開業ができないところもあります。
■物件によっては、飲食店許可を得るに際し、思わぬ内装工事の費用を要する場合があります。
■開業にあたっては、消防署への各種届出も必要です。
関西(京都・大阪・神戸・滋賀・奈良・三重)、名古屋、東京、その他全国各地出張いたします。
クラブ・ラウンジなど社交飲食店(風俗営業2号営業)に係る許可申請、あるいはデリバリーヘルス(デリヘル)に係る届出申請について、行政書士に手続を依頼した場合、どのようなメリットがあるのでしょうか。
まず、はじめに断っておきたいのが、Q&Aでも触れた通り、行政書士に手続を依頼したからといって、許可がおりやすくなったり、許可が降りるまでの日数や届出確認書の交付に係る日数が短縮されるということはありません。
ですが、申請にあたっては、記載例が用意されているわけでもなく、また図面も必要です。初めて申請される場合、警察に足を何度も何度も運びかねません。場合によっては、せっかく使用承諾書がおりる物件を見つけてきても、申請書や届出書を出すまでに1か月以上かかるケースもあります。その場合でも、家賃は支払わなければなりません。
行政書士に手続を依頼した場合、言うまでもなく図面の作成や申請書、届出書の作成がスムーズに運び、結果的に開業までの時間が短縮されます。
実際、自分で手続を行ってみたものの、結局は行政書士に依頼することとなり、
「こんなことになるんだったら、最初からお願いしておけばよかった」
という声をよく聞きます。また、当行政書士事務所にデリヘル開業サポート(フルサポート)を依頼された場合、事務所(及び待機所)探しのお手伝いからはじめ、開業後のフォロー(従業者名簿ひな形作成・雇用契約書ひな雛形作成・ホームページ作成アドバイス(ご希望であれば開業当初の簡易なホームページの作成をします)、変更届提出サポートその他)もさせて頂きます。
さて、あなたはどうされますか。開業はスタートが肝心、まずはご連絡頂ければと思います。
深夜バー開業サポート内容・報酬についてはこちらまで。 ![]()






